Montar um restaurante exige planejamento cuidadoso, investimento estratégico e decisões acertadas. Cada escolha, desde o cardápio até a estrutura do espaço, impacta diretamente na experiência do cliente e na rentabilidade do negócio.
Neste guia, apresentamos os passos essenciais para abrir seu restaurante com sucesso, guiando você do planejamento inicial e análise de mercado até a escolha de equipamentos profissionais e formação de equipe, sempre com foco em eficiência, qualidade e segurança na operação. Com orientação prática e dados confiáveis, você poderá tomar decisões mais seguras e estabelecer uma base sólida para o crescimento do seu negócio.
Pesquisa e Planejamento Estratégico
O primeiro passo é entender o mercado e o seu público-alvo, criando um planejamento estratégico que sustente todas as decisões futuras. Sem uma base sólida de pesquisa, mesmo os melhores investimentos podem se perder.
Análise de mercado e concorrência
Identifique restaurantes próximos ao endereço onde pretende abrir seu estabelecimento, levando em consideração fatores como fluxo de pessoas, perfil do bairro e acessibilidade. Avalie tanto concorrentes diretos, que oferecem o mesmo tipo de culinária, quanto indiretos, como fast foods, delivery ou outros formatos que disputam a atenção do mesmo público. Essa pesquisa pode ser feita “in loco”, com você visitando os estabelecimentos como cliente.
Aqui vão os detalhes essenciais a serem observados em uma pesquisa de mercado:
- Cardápio e preços: visite os perfis do Instagram, sites e páginas do iFood dos concorrentes. Lá você pode ver:
- Quais pratos aparecem com mais frequência nos comentários ou fotos (sinal de popularidade).
- Faixa de preços por categoria (entrada, prato principal, sobremesa).
- Promoções recorrentes (ex.: “executivo do dia”, “happy hour”, “rodízio”).
- Ao visitar o local como cliente, observe o movimento: quais pratos saem mais da cozinha e o tamanho das porções.
- Horários de funcionamento: entenda quando há maior movimento e como isso impacta a operação. O Google Maps mostra os horários de pico de cada estabelecimento. Caso não haja dados, anote os horários de maior fluxo durante visitas presenciais em diferentes dias da semana.
- Veja se há fila na hora do almoço ou do jantar.
- Observe quando o salão fica mais vazio.
- Avaliações online: comentários no Google Maps, iFood, TripAdvisor ajudam a identificar pontos fortes e fracos da concorrência.
- Priorize comentários recentes (dos últimos 6 a 12 meses), pois refletem a operação atual do restaurante e as expectativas mais recentes dos clientes.
- Durante a pesquisa observe: elogios e queixas frequentes ao atendimento, sabor, ambiente, rapidez e porções.
- Veja se há temas que se repetem entre vários restaurantes (ex.: todos reclamam de estacionamento, ou todos elogiam pratos caseiros). Isso mostra oportunidades de diferenciação.
- Faça uma tabela simples com as colunas: Nome do restaurante, número de avaliações analisadas, principais elogios, principais críticas e ideias de oportunidade.
Definição do público-alvo
Determine exatamente quem você quer atingir: faixa etária, renda, hábitos de consumo e preferências gastronômicas. Conhecer seu público ajuda a definir cardápio, preços, atendimento e canais de divulgação. Mas definir esse público vai muito além de pensar “quem gosta do tipo de comida que eu sirvo”. É descobrir quem realmente compra, o que valoriza e o que o faz voltar.
Como definir seu público na prática
Observe quem consome na região
Visite outros restaurantes da área e observe:
- Faixa etária predominante (jovens, famílias, profissionais, aposentados).
- Contexto de consumo: almoços rápidos durante o expediente, jantares em família, encontros entre amigos, etc.
- Comportamento: chegam sozinhos ou em grupo? Ficam muito tempo? Pedem sobremesa?
Anote essas percepções durante uma semana, isso já mostra quais perfis são mais comuns e em quais horários.
Analise dados demográficos do bairro
Use ferramentas como o IBGE Cidades e DataSebrae para descobrir:
- Faixa de renda média;
- Tamanho da população e densidade;
- Atividades econômicas predominantes.
Essas informações ajudam a definir se o foco deve ser, por exemplo, um restaurante executivo ou um espaço familiar.
Segmente o público usando quatro critérios principais
- Demográficos: idade, gênero, renda, profissão.
- Geográficos: bairro, cidade, tipo de região (central, residencial, comercial).
- Psicográficos: valores, estilo de vida e preferências (ex.: comida saudável, ambiente sofisticado, experiência informal).
- Comportamentais: frequência de consumo, ocasião (almoço diário, jantares de fim de semana, eventos), e motivadores de escolha (preço, conveniência, ambiente, qualidade).
Identifique padrões no comportamento do cliente
- No Google ou iFood, veja quem comenta nos restaurantes da região, o tipo de público, o horário de visita, o que elogiam e criticam.
- Nas redes sociais, observe o perfil dos seguidores e o tipo de conteúdo que mais gera engajamento (fotos de pratos, promoções, ambiente etc.).
- Combine essas informações com a observação presencial para entender quem realmente frequenta e quem você quer atrair.
Crie uma persona do cliente ideal
A persona é a representação detalhada do seu cliente típico. Um exemplo de persona para um restaurante urbano:
- Idade: 25–45 anos
- Profissão: trabalha em empresas próximas
- Renda: média a média-alta
- Hábitos: almoça fora três vezes por semana, valoriza praticidade e bom custo-benefício
- Motivação: busca comida saborosa e ambiente agradável sem gastar muito tempo
- Pontos críticos a serem solucionados: não quer esperar, evita lugares muito cheios ou caros
Padrões e tendências de consumo
Pesquise quais tipos de refeição têm maior procura na região: almoço rápido, jantar completo ou delivery. Estudar padrões de consumo permite ajustar horários de operação e serviços oferecidos.
Para entender o que o público realmente consome na região, vale ir além da observação casual e recorrer a ferramentas acessíveis. Aplicativos como iFood, Rappi e 99Food ajudam a identificar quais tipos de refeição têm maior demanda. Basta selecionar o bairro de interesse e observar as categorias mais populares, como marmitas, comida japonesa, lanches ou pizzas, além dos restaurantes com mais avaliações e pedidos. As seções de “mais vendidos” nesses apps também podem servir como termômetros para entender preferências locais e faixas de preço médias.
Além disso, acompanhar tendências do mercado pode ser decisivo. Por exemplo, o relatório da ABRASEL mostra que as “marmitas” ganharam protagonismo no delivery no Brasil, refletindo a demanda por refeições práticas e rápidas. Complementando, uma pesquisa do iFood em 2024 indica que a culinária brasileira liderou os pedidos no horário de almoço, representando 38% do total. Em cidades como o Rio de Janeiro, os itens mais vendidos foram: lanches (~30 milhões de pedidos), culinária brasileira (~14 milhões) e pizza (~10,2 milhões).
Alerta de planejamento
Dados do setor mostram que cerca de 6 em cada 10 restaurantes não chegam a completar dois anos de atividade, e esse número tem crescido. O fechamento precoce não ocorre necessariamente por falta de clientes, mas por má gestão. Todo o planejamento citado até aqui (análise de mercado e concorrência, definição do público-alvo e estudo dos padrões e tendências de consumo) é justamente o alicerce para evitar esse cenário. São etapas práticas que, quando bem executadas, transformam uma boa ideia em um negócio sustentável.
Se você quer se aprofundar no assunto, aqui vão algumas fontes de aprendizado voltadas à gestão de restaurantes e negócios alimentícios:
Cursos gratuitos online pelo Sebrae:
- Gestão de Bares e Restaurantes
- Trilha Gestão Financeira (em parceria com iFood): focado em finanças, fluxo de caixa e formação de preço de venda para alimentação fora do lar.
- Plataforma de cursos da Abrasel + Sebrae: “Conexão Abrasel” oferece capacitações rápidas voltadas ao segmento.
Podcast especializado no segmento:
- Foodness Talks: debates com gestores e especialistas em negócios de alimentação sobre gestão, processos, delivery e estratégias.
Livros de referência para gestão de restaurante:
- Gestão de Restaurante – Uma Abordagem do Investimento Até a Análise do Resultado: Um manual operacional para quem está investindo ou já está no negócio e precisa de orientação em finanças, instalação e resultado.
- Gestão, Planejamentos e Operação de Restaurantes: Focado em planejamento, execução e operação de restaurantes, com visão prática para quem vai abrir ou já opera.
- Gestão em um Restaurante para Redução de Custos e de Resíduos Sólidos: Aborda temas específicos como controle de custo, ficha técnica e desperdício.
Aspectos Legais e Burocráticos
Após entender o mercado e seu público, regularizar o restaurante é o próximo passo. Estar em conformidade com questões legais garante um funcionamento sem riscos. Portanto, antes de iniciar as operações, é importante seguir todas as etapas de registro e licenciamento.
Registro do CNPJ
Nesta etapa, o primeiro passo é formalizar o negócio junto à Junta Comercial do seu estado, pelo sistema Redesim, que integra todos os órgãos necessários para a abertura de empresas. Após o registro, a própria plataforma envia as informações à Receita Federal, que emite o CNPJ (Cadastro Nacional da Pessoa Jurídica).
Esse documento é indispensável para contratar funcionários, emitir notas fiscais e solicitar financiamentos. Para negócios menores, também é possível começar como MEI (Microempreendedor Individual), diretamente pelo Portal do Empreendedor, onde o processo é mais simples e totalmente digital.
Salientamos que como este é um guia geral, é interessante buscar o apoio de um contador ou advogado, que poderá orientar sobre o enquadramento jurídico e tributário mais adequado ao seu caso.
Alvarás e licenças obrigatórias
Com o CNPJ ou MEI em mãos, é hora de solicitar as licenças necessárias para funcionamento:
- Alvará de funcionamento, emitido pela prefeitura local, que autoriza o exercício da atividade comercial. Como obter:
- Acesse o portal da prefeitura do município ou o sistema de licenciamento digital.
- Preencha os dados da empresa (CNPJ, endereço, atividade), anexe documentos (contrato de locação, mapa do imóvel, certificado de zoneamento) e pague as taxas municipais.
- Após aprovação da vistoria (ou análise documental), a prefeitura emite o alvará.
O custo do alvará de funcionamento varia conforme município, tipo de atividade e porte do estabelecimento, e o tempo também pode variar bastante, em alguns casos a emissão provisória sai em poucos dias, em outros pode levar semanas, especialmente se houver vistoria técnica. Caso você precise de ajuda é válido entrar em contato com um contador ou advogado, ou contar com consultoria especializada na área.
- Licença sanitária, emitida pela vigilância sanitária (Anvisa), garantindo que o restaurante segue as normas de higiene e manipulação de alimentos. Como obter:
- Solicite junto ao órgão municipal de vigilância sanitária.
- Prepare documentação: CNPJ, contrato social, alvará de funcionamento, projeto arquitetônico ou planta, manual de boas práticas, ficha técnica de alimentos, controle de resíduos e pragas.
A taxa da licença sanitária varia por município e pode depender do tipo de atividade/porte, assim como o tempo também varia, mas geralmente o processo leva algumas semanas. Você pode contar com consultoria sanitária especializada para orientação a respeito do processo.
- Autorização do Corpo de Bombeiros, que certifica que o local possui as condições adequadas de segurança, saídas de emergência e equipamentos de combate a incêndio. Como obter:
- Contrate um engenheiro ou arquiteto para elaborar o Projeto de Prevenção Contra Incêndio (PPCI) conforme as normas do estado.
- Submeta o projeto ao Corpo de Bombeiros; após aprovação será feita vistoria; se tudo estiver em ordem, será emitido o AVCB (Auto de Vistoria do Corpo de Bombeiros) ou CLCB
O custo inclui honorários do engenheiro + taxas do Corpo de Bombeiros, variando conforme estado e porte do estabelecimento. E o prazo pode levar de algumas semanas a meses, especialmente se houver exigências de adequação estrutural.
Cumprir essas questões burocráticas pode parecer complexo, mas é o que garante que o restaurante opere com tranquilidade, segurança e reputação sólida desde o início. Negócios que funcionam sem licenças correm sérios riscos. Em São Paulo, por exemplo, uma CPI revelou que mais de 80% dos estabelecimentos grandes da cidade operavam sem alvará, e a prefeitura tem realizado operações de fiscalização e multas que chegam a R$ 30 mil por infração. Em outras cidades, como Juazeiro-BA, mais de 20 bares e restaurantes foram notificados por funcionamento irregular.
Esses exemplos mostram que cumprir todas as etapas legais não é apenas uma formalidade, é uma proteção essencial para garantir a longevidade e a credibilidade do seu negócio.
Espaço Físico, Estrutura, Layout e Ambiente
Ao ter resolvido os aspectos legais, a próxima etapa é a escolha e o planejamento do espaço físico do restaurante, isso tem impacto direto na operação e na experiência do cliente. Um bom ponto comercial, aliado a uma estrutura funcional e agradável, pode determinar o sucesso do negócio desde o início.
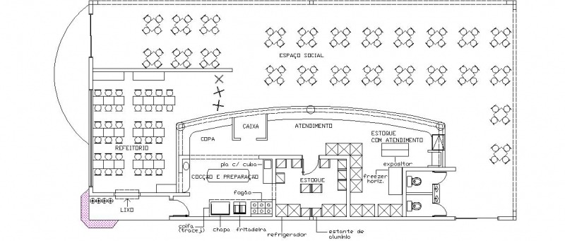
Fluxo operacional e layout
O layout deve ser planejado para otimizar o fluxo entre cozinha, atendimento e salão, garantindo que cada área funcione de forma integrada. A disposição dos espaços deve permitir que a equipe circule com agilidade e segurança, evitando congestionamentos ou interferências entre o serviço de cozinha e o atendimento ao cliente.

Fonte: Consultoria a Distância
Um projeto bem estruturado reduz deslocamentos desnecessários, melhora o ritmo de trabalho e aumenta a eficiência operacional. Para isso, vale consultar arquitetos especialistas em projetos de restaurantes, garantindo uma melhor disposição de equipamentos e bancadas, seguindo as normas sanitárias e em conformidade com o tipo de serviço oferecido. Busque profissionais desse tipo na sua cidade. Como referência, vale conhecer o trabalho da Restô Arquitetura, escritório brasileiro especializado em design e layout para bares e restaurantes.
Ambiente e experiência do cliente
A estrutura de seu restaurante deve proporcionar conforto e bem-estar. Itens como iluminação, ventilação e decoração influenciam diretamente a percepção de qualidade e podem ser diferenciais para fidelização. Um ambiente agradável transforma refeições em experiências e incentiva o retorno do cliente.
Iluminação
A luz usada em um restaurante vai muito além da visibilidade, ela molda o clima, influencia o comportamento dos clientes e valoriza tanto o ambiente quanto os pratos. Como observado em um artigo da ABRASEL: “A iluminação para restaurantes vai muito além da função prática de clarear o ambiente. Ela interfere na percepção dos sabores e até influencia o tempo de permanência dos clientes.” Para aplicar isso estrategicamente:
- Em restaurantes de perfil sofisticado, aposte em temperaturas de cor quentes (em torno de 2700K a 3000K), luz indireta e intensidade mais baixa, isso cria uma atmosfera mais intimista, elegante e adequada para jantares especiais.
- Em ambientes mais casuais ou de almoço rápido/familiar, utilize luz mais clara e generosa, com tons próximos de 3500K ou mais, para transmitir agilidade, conforto e transparência no serviço.
- Além da temperatura de cor, pense em camadas de iluminação: luz geral para o salão, iluminação direcionada nas mesas ou balcão, e iluminação de destaque para paredes, objetos ou o alimento em si. Uma combinação eficaz desses elementos melhora a percepção do ambiente e da qualidade da refeição.
- Não esqueça a função estética: bem escolhida, a iluminação realça as cores, texturas e formas dos pratos e do espaço, contribuindo para uma experiência mais envolvente e valorizada pelo cliente.
Ventilação
Embora seja menos discutida no setor de alimentação, a ventilação é essencial para o conforto térmico, para a circulação de ar e para evitar odores residuais que comprometem a experiência. Um estudo sobre ventilação natural constatou que, mesmo em refeitórios, ambientes com ventilação mal projetada apresentaram desconforto térmico significativo. Em cozinhas abertas ou com grelhas, a ventilação adequada evita que fumaça, odores ou excesso de calor invadam o salão e prejudiquem o cliente.
Decoração
A decoração do restaurante comunica seu posicionamento e orienta a experiência do cliente desde o primeiro passo até a sobremesa. Um projeto bem pensado considera público, conceito e operação.
Para operações sofisticadas, por exemplo, o mobiliário costuma prezar por materiais nobres como madeira escura ou metais acetinados, cores neutras (cinza-chumbo, preto, marfim) e acabamentos refinados. O layout privilegia espaços amplos entre mesas, iluminação indireta e objetos decorativos discretos, reforçando o valor percebido da casa. Já em estabelecimentos mais acessíveis, como uma trattoria ou pizzaria familiar, a decoração pode apostar em mobiliário mais simples, materiais resistentes, cores mais vivas e um ambiente acolhedor que favoreça a circulação de grupos maiores.
Além disso, a paleta de cores e os elementos visuais criam atmosfera e estimulam apetite ou relaxamento: tons quentes como vermelho e laranja geram dinamismo, ideais para lugares rápidos ou informais, enquanto cores frias ou sóbrias evocam calma e elegância, preferíveis para jantares mais tranquilos.
Outro detalhe importante está na escolha dos móveis: conforto e funcionalidade caminham juntos. Cadeiras muito baixas ou mesas apertadas dificultam a experiência. Por outro lado, locais reservados com sofá, bancos ou booths em restaurantes que recebem famílias contribuem para um tempo de permanência maior. Também vale pensar em pontos de destaque visuais: uma parede com revestimento especial, painel artístico ou iluminação focal ajudam a criar memorização do ambiente e favorecem o compartilhamento nas redes sociais.
Equipamentos Essenciais para Cozinha e Refrigeração
Após definir o espaço físico e otimizar o layout, é hora de preencher a cozinha com os equipamentos certos, garantindo que cada área funcione de maneira eficiente e integrada. A escolha adequada dos equipamentos potencializa o fluxo de trabalho, facilita a operação da equipe e assegura qualidade na preparação dos alimentos.
Planejar cuidadosamente a seleção dos equipamentos reduz desperdícios, agiliza processos e torna a operação mais prática, otimizando o tempo de preparo e refletindo diretamente na experiência do cliente.
Lista básica de equipamentos:
- Fogão industrial, forno, fritadeira: essenciais para o preparo de alimentos em grande escala.
- Geladeira e freezer comerciais: indispensáveis para a conservação adequada dos alimentos.
- Processadores, liquidificadores e batedeiras: facilitam o preparo e a agilidade na cozinha.
- Bancadas e armários em inox: garantem durabilidade e facilidade na limpeza.
- Exaustores e sistemas de climatização: importantes para manter o ambiente de trabalho confortável e seguro.
- Utensílios de cozinha: incluem panelas, talheres, pratos, copos, botijão de gás, entre outros.
- Caixa registradora, balança eletrônica, computador e máquina de cartão: essenciais para o controle financeiro e operações de pagamento.
- Mesas, cadeiras e guardanapos para o salão: indispensáveis para o conforto e a experiência do cliente.
Investir em produtos de qualidade e trabalhar com empresas confiáveis simplifica a rotina da equipe, assegura suporte e manutenção eficientes e contribui para a sustentabilidade da operação.
Formação e Treinamento da Equipe
Com a cozinha equipada de forma adequada, o próximo passo é investir na formação da equipe, pois mesmo os melhores equipamentos só atingem seu potencial quando operados por profissionais capacitados e alinhados aos processos do restaurante.
O desempenho do negócio depende diretamente da competência da equipe: profissionais bem treinados garantem operações eficientes e proporcionam uma experiência consistente e positiva para o cliente, por meio de atendimento padronizado e de qualidade.
Para encontrar bons profissionais:
- Busque talentos no setor gastronômico local, por meio de plataformas especializadas como o Catho, InfoJobs ou grupos regionais no LinkedIn.
- Parcerias com escolas de gastronomia e institutos de ensino técnico também são uma ótima forma de encontrar profissionais em formação, com base sólida e disposição para crescer. Entre as mais reconhecidas estão o SENAC e o Instituto Gastronômico das Américas (IGA), ambos com unidades em diversas cidades.
Equipe essencial
É importante definir os cargos necessários para o funcionamento do restaurante, incluindo cozinheiros, auxiliares de cozinha, atendentes, garçons (uma média de 1 garçom para cada 5 mesas) e profissionais de limpeza. Cada função deve ter responsabilidades claras para evitar sobrecarga e garantir fluidez no serviço.
Treinamento contínuo
Investir em capacitação constante é crucial, porque garante que a equipe esteja preparada para executar suas funções com qualidade e segurança, reduzir erros e desperdícios, melhorar o atendimento e fidelizar clientes.
A equipe deve ser treinada em higiene, manipulação segura de alimentos, operação de equipamentos e atendimento ao cliente, assegurando qualidade e segurança em todas as etapas do serviço.
Cultura organizacional
Alinhar valores, padrões de qualidade e processos internos ajuda a criar uma cultura sólida, favorecendo a fidelização de clientes e mantendo consistência na entrega do serviço.
Quando sua equipe compartilha valores claros e opera sob processos internos bem definidos você constrói uma cultura organizacional que leva ao mesmo tipo de atendimento em cada turno, cada dia. Isso gera confiança: o cliente sabe o que esperar, sente-se bem‑atendido e tende a voltar (ou indicar). Ao mesmo tempo, essa consistência interna reduz falhas e melhora a experiência de trabalho dos colaboradores.
Estudos confirmam que uma cultura forte (com trabalho em equipe e suporte mútuo) está positivamente ligada à percepção de qualidade do serviço e à intenção de retorno do cliente em restaurantes.
E manter a equipe motivada é tão importante quanto treiná-la dentro da cultura organizacional: incentivos, reconhecimento e oportunidades de crescimento aumentam o comprometimento, o engajamento e a satisfação de todos. Funcionários motivados internalizam os valores da empresa, aplicam os processos corretamente e mantêm os padrões, criando um círculo virtuoso em que cultura, motivação e resultados caminham juntos.
Conclusão
Abrir um restaurante de sucesso vai muito além de escolher o cardápio ou o ponto comercial. Exige planejamento estratégico, pesquisa de mercado, atenção às normas legais e adequação do espaço físico, além da escolha de equipamentos e da formação de uma equipe bem treinada. Cada decisão, desde o layout da cozinha até a capacitação contínua dos colaboradores, impacta diretamente na qualidade do serviço, na experiência do cliente e na rentabilidade do negócio.
Investir em produtos de qualidade e trabalhar com fornecedores confiáveis ajuda a simplificar a rotina da equipe, garante suporte e manutenção eficientes e contribui para a sustentabilidade da operação a longo prazo.A Catral oferece uma linha completa de equipamentos para cozinha profissional e orientação especializada para ajudar você a montar sua operação com produtos confiáveis. Nossa equipe de Televendas realiza atendimento personalizado, esclarecendo todas as suas dúvidas e auxiliando em cada etapa da compra, com rapidez, praticidade e qualidade.

